GIANT Series Extra-Large Roller Shutter: Built to Your Specifications

The GIANT Series is Gliderol’s solution for large roller shutter openings exceeding 12,000 mm in width or 7,000 mm in height. Designed with a dual-barrel system, these heavy-duty steel shutters reduce deflection and improve wind load resistance.

Each large roller shutter is custom-engineered to meet specific client requirements, accommodating unique dimensions and site-specific wind load conditions.

Get a Quote

Choose the Right Slats for Your Large Roller Shutter

Our large roller shutter is available with two slat types to match your project needs: single-skin for tall, narrow doors and double-skin cavity for enhanced wind resistance.

Single-skin Slats for narrow but high doors

  • Roll-formed in 1.0 mm or 1.2 mm thick galvanized steel
  • Finishing - Pre-painted Colorbond (standard colors), Powder-coated, or PVF2-coated

Double-skin cavity Slats for wider doors

  • 80mm x 20mm thick double-walled steel roll-formed cavity slats for greater resistance to wind pressure
  • Insulation infill is optional
  • Finishing - Pre-painted Colorbond (standard colors), Powder-coated, or PVF2-coated

Technical Specifications and Material Composition

Each large roller shutter is constructed from heavy-duty components, including durable drum assemblies, interlocking slats, and reinforced guides for smooth and safe operation.

Drum Assembly

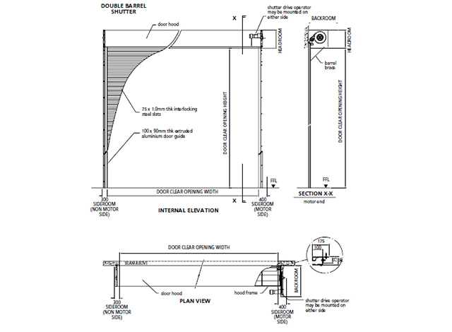
The barrel assembly employs a dual-barrel system. The main barrel consists of an extremely rigid steel tube sheathed over a pair of drive shaft assemblies fitted to heavy-duty bearing sets and supported at both ends by steel head plates.

The drive shaft is a solid, polished-steel round bar incorporating keyways to accept the drive sprocket. The head plates are 8mm thick with shafts of 50mm diameter.

The secondary barrel is located at the front of the main barrel, feeding the door curtain vertically into the guide channels. At the same time, it alleviates the horizontal deflection of the door curtain and significantly improves the wind load capability of the shutter by stiffening the top portion of the door.

Fall Arrestor

The drive shaft is fitted with a Fall Arrestor device that will immediately arrest the shaft as soon as the shaft rotates at a higher speed than normal. This is a safety feature of our large roller shutter that will eliminate the possibility of the curtain free-falling in the event of a motor failure.

Door Curtain

Material

The door curtain is made up of sturdily designed galvanized steel scroll-profiled interlocking slats, 75mm high x 1.0mm or 1.2mm thick. For wider doors, 80mm x 20mm thick double skin cavity slats are used for extra rigidity.

End Clips

Steel end clips are secured to alternate slats to prevent lateral movements. Cavity slats are fitted with profiled steel end clips at each end of every slat.

Wind-lock Clips

Steel wind-lock clips are provided at about 4-slat intervals as a standard fitting.

Bottom Rail

The bottom rail is a single length inverted 'T' double-walled extruded aluminium profile of overall 20mm thick, with the base containing a slot to retain the bottom seal.

Bottom Seal

The bottom rail is fitted with a finned PVC bottom seal that will seal against the floor when the door is fully closed. An astragal tube weather seal is available as an option where a safety edge or tighter weather sealing is required.

Safety Edge

A pneumatic bottom safety edge is available as an option for our large roller shutter series. This consists of a pneumatic switch fitted to the bottom rail, connected to the astragal weather seal, and wired to the motor controls.

Both ends of the weather seal are capped, such that it forms an air tube. Whenever the closing door is obstructed, the astragal tube will be compressed, forcing out a tiny gust of air to activate the pneumatic switch.

The switch will, in turn, activate the motor operator to instantly stop the downward travel of the shutter.

Door Guides

The guides shall be a heavy-duty extruded aluminium guide channel of overall size 90mm x 100 mm deep, incorporating the wind-lock feature.

It has a built-in cavity to accommodate and conceal the cable chain of the safety edge system, thus eliminating the need for an exposed trailing spiral cable that may pose a safety hazard.

Rubber seals are fitted to the lips of the guides to prevent metal-to-metal contact, thus ensuring a smooth and quiet operation. It also features a removable guide cover to facilitate easy maintenance.

Door Operation

Motor Drive

The drive unit consists of a suitably-sized linear drive motor operator mounted parallel to and behind the door roll. It has an integrated gearbox and a chain-operated sheave wheel for manual operation in case of power failure.

The control box is lockable, housing a set of push buttons for 'Up', 'Down', and 'Stop' operations. The door travel shall automatically stop at the desired upper and lower limits via adjustable limit switches.

For a large roller shutter without a safety edge, the 'Down' button shall require the operator to push and hold when closing the shutter. This is to ensure the closing operation is being supervised.

Upon sighting an obstruction, the operator will automatically release the button by reflex. This will instantly stop the downward travel of the shutter and prevent accidents.

Power supply shall be either Single Phase 230V x 15amp or a 3 Phase 415V x 20amp, depending on the size of the shutter.

Key Advantages of the GIANT Series Extra-Large Roller Shutters

  • Customisable for Large Openings: We tailor your large roller shutter according to your specific requirements.
  • Durable Construction: Heavy-duty materials, including galvanized steel slats, reinforced end clips, and wind-lock clips, ensure long-lasting performance under demanding conditions.
  • Reliable Safety Features: Fall arrestor devices and optional pneumatic safety edges to prevent accidents if the large roller shutter motor fails.
  • Enhanced Structural Strength: Dual-barrel drum assemblies and reinforced slats minimize deflection, providing superior rigidity and wind load resistance.

GIANT Series Extra-Large Roller Shutters on Display

Speak With Our Team Today

Contact Us